樓盤:華僑城寶辰物業類型:寫字樓、商業戶型:1室面積:約110-229平米總價:約880-3000萬聯系人:何詠斌聯系電話:13267179661
樓盤:華僑城寶辰
物業類型:寫字樓、商業
戶型:1室
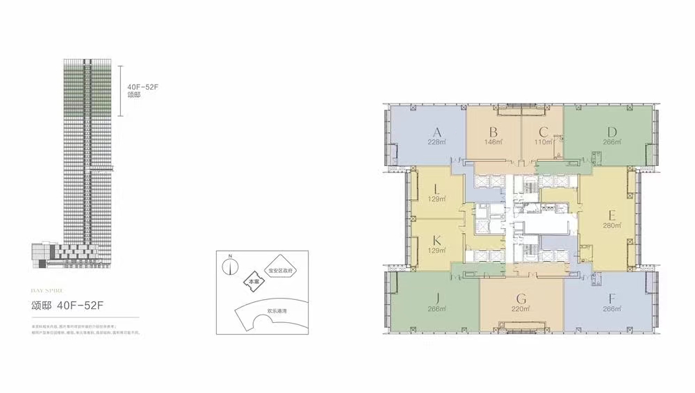
面積:約110-229平米
總價:約880-3000萬
聯系人:何詠斌
聯系電話:13267179661



深圳市鹽田區鹽三路天麓三區商業街營銷中心
服務熱線:何詠斌 聯系方式:13267179661
深圳市寶安區政府西南
服務熱線:何永斌 聯系方式:13267179661
深圳市寶安區歡樂港灣
服務熱線:何永斌 聯系方式:13267179661
深圳市寶安中心區濱海片區新安街道興業路與香灣二路交叉口
服務熱線:何詠斌 聯系方式:13267179661
深圳市龍華新區大浪街道龍勝路及工業西路之間
服務熱線:何詠斌 聯系方式:13267179661
岐港公路
服務熱線:何詠斌 聯系方式:13267179661
廣東省東莞市麻涌鎮麻涌中心大道35號210室
服務熱線:何永斌 聯系方式:13267179661
深圳市華僑城新璽營銷中心53F
服務熱線:何永斌 聯系方式:13267179661